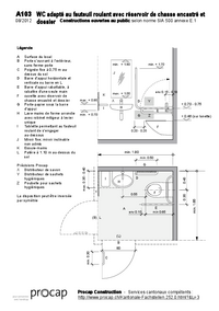
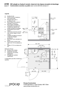
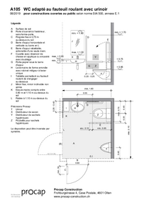
Rechercher «» Reset Such-Filter Tous Fichiers 91. A126_guichet_de_la_prestation_08_2019.pdf A126 Guichets de services ouverts au public 08/2019 Selon norme SIA 500, chiffre 7.4.4 Côté clients, les plans de travail à utiliser en position assise et les tables doivent avoir une hauteur… /fileadmin/files/procap/Angebote/Beratung_Information/Bauen_und_Verkehr/Downloads/Merkblaetter_und_Checklisten/Oeffentlich_zugaengliche_Bauten/Gebaeudezugang_und_Eingangsbereich/Francais/A126_guichet_de_la_prestation_08_2019.pdf 92. A129_Elements_de_mobilier_urbain_12_2019.pdf A129 Eléments de mobilier urbain 12/2019 selon norme SIA 500, chiffre 3.4.4 Obstacles Principe Les éléments de mobilier urbain sont à disposer en dehors des espaces de cheminement piétonnier. … /fileadmin/files/procap/Angebote/Beratung_Information/Bauen_und_Verkehr/Downloads/Merkblaetter_und_Checklisten/Oeffentlich_zugaengliche_Bauten/Gebaeudezugang_und_Eingangsbereich/Francais/A129_Elements_de_mobilier_urbain_12_2019.pdf 93. A130_Informations_visuelles_12_2019.pdf A130 Informations visuelles 12/2019 selon norme SIA 500, chiffre 6.2.1 Les inscriptions et les pictogrammes destinés à informer ou à guider les personnes doivent être placés dans leur champ visuel… /fileadmin/files/procap/Angebote/Beratung_Information/Bauen_und_Verkehr/Downloads/Merkblaetter_und_Checklisten/Oeffentlich_zugaengliche_Bauten/Gebaeudezugang_und_Eingangsbereich/Francais/A130_Informations_visuelles_12_2019.pdf 94. F107_Installation_d_ecoute_01_2020.pdf 01/20 Fiche technique 107 Installations d’écoute selon chiffre 7.8 de la norme SIA 500 Seule la teneur de la norme SIA 500 et celle de la norme SN EN 60118-4 qui lui est associée font foi (à… /fileadmin/files/procap/Angebote/Beratung_Information/Bauen_und_Verkehr/Downloads/Merkblaetter_und_Checklisten/Oeffentlich_zugaengliche_Bauten/Hoeranlagen/Francais/F107_Installation_d_ecoute_01_2020.pdf 95. A101_WC_reservoir_en_applique_2019_08.pdf A101 WC adapté au fauteuil roulant, réservoir de chasse an applique 08/2019 Constructions ouvertes au public selon norme SIA annexe E.1 Légende F G H l J K L X H I Y D G + 0.70 - + 0.75 Z … /fileadmin/files/procap/Angebote/Beratung_Information/Bauen_und_Verkehr/Downloads/Merkblaetter_und_Checklisten/Oeffentlich_zugaengliche_Bauten/Rollstuhlgaengige_Toiletten/Francais/A101_WC_reservoir_en_applique_2019_08.pdf 96. A102_WC_reservoir_encastre_et_doublage_2017_09.pdf A102 WC adapté au fauteuil roulant, réservoir de chasse encastré et doublage 09/2017 Constructions ouvertes au public selon norme SIA 500 annexe E.1 Légende G H l J K L Précisions Procap W… /fileadmin/files/procap/Angebote/Beratung_Information/Bauen_und_Verkehr/Downloads/Merkblaetter_und_Checklisten/Oeffentlich_zugaengliche_Bauten/Rollstuhlgaengige_Toiletten/Francais/A102_WC_reservoir_encastre_et_doublage_2017_09.pdf 97. A103_WC_reservoir_encastre_et_dossier_2012_08.pdf A103 WC adapté au fauteuil roulant avec réservoir de chasse encastré et 08/2012 dossier Constructions ouvertes au public selon norme SIA 500 annexe E.1 Légende F G H l J K L Précisions Procap X… /fileadmin/files/procap/Angebote/Beratung_Information/Bauen_und_Verkehr/Downloads/Merkblaetter_und_Checklisten/Oeffentlich_zugaengliche_Bauten/Rollstuhlgaengige_Toiletten/Francais/A103_WC_reservoir_encastre_et_dossier_2012_08.pdf 98. A104_WC_porte_ouvrant_a_interieur_2019_08.pdf A104 WC adapté au fauteuil roulant avec porte s'ouvrant à l'intérieur 08/2019 pour constructions ouvertes au public selon norme SIA 500, annexe E.1 Lorsque la porte s'ouvre à l'intérieur, la… /fileadmin/files/procap/Angebote/Beratung_Information/Bauen_und_Verkehr/Downloads/Merkblaetter_und_Checklisten/Oeffentlich_zugaengliche_Bauten/Rollstuhlgaengige_Toiletten/Francais/A104_WC_porte_ouvrant_a_interieur_2019_08.pdf 99. A105_WC_avec_urinoir_2019_08.pdf A105 WC adapté au fauteuil roulant avec urinoir 08/2019 pour constructions ouvertes au public selon norme SIA 500, annexe E.1 Légende H l J K L Précisions Procap T Urinoir X Distributeur de savon… /fileadmin/files/procap/Angebote/Beratung_Information/Bauen_und_Verkehr/Downloads/Merkblaetter_und_Checklisten/Oeffentlich_zugaengliche_Bauten/Rollstuhlgaengige_Toiletten/Francais/A105_WC_avec_urinoir_2019_08.pdf 100. A123_WC_pour_personnes_a_mobilite_reduite_2019_08.pdf A123 WC pour personnes à mobilité réduite 08/2019 Selon documentation D0254 Installations de sport sans obstacles, chiffre 6.3.2 Parmi les WC standard, au moins l'un devrait si possible remplir les… /fileadmin/files/procap/Angebote/Beratung_Information/Bauen_und_Verkehr/Downloads/Merkblaetter_und_Checklisten/Oeffentlich_zugaengliche_Bauten/Rollstuhlgaengige_Toiletten/Francais/A123_WC_pour_personnes_a_mobilite_reduite_2019_08.pdf <567891011121314>